10a E Main Street, Waverly, VA

$345,000

Previous Next

23.54

Acres

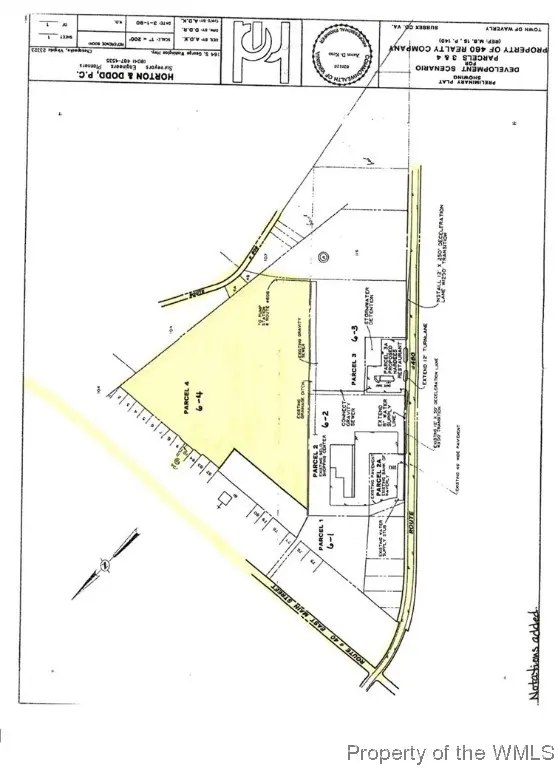
About 10a E Main Street

Three parcels listed jointly. Largest parcel is approximately 23.01 acres +/-, zoned R-4 Residential. Lot 10A (.38 acre +/-) is on East Main Street and is possible access to larger parcel. Parcel 28A8-6-4A (.15 acre +/-) is on Route 606 (also known as Beaver Dam Rd) and is possible access to larger parcel. Good development potential.

Features of 10a E Main Street

MLS® # 2303619
Price $345,000
Bathrooms 0.00
Acres 23.54
Type Land
Status Active

Community Information

Address 10a E Main Street
Subdivision Waverly Place
City Waverly
County Sussex
State VA
Zip Code 23890

Amenities

Utilities Natural Gas Available, Electricity Available
Features Split Possible, Undeveloped, Wooded
Is Waterfront No
Has Pool No

Interior

Fireplace No

Exterior

Lot Description Split Possible, Undeveloped, Wooded

School Information

Elementary Sussex Central
Middle Sussex Central
High Sussex Central

Additional Information

Foreclosure No
Short Sale No
RE / Bank Owned No

Listing Details

OfficeBHHS RW Towne Realty LLC

Listing Map

Request a Showing

Provide a valid email address.
When would you like to view this property?